317 Cricklewood Broadway: A New Student Living Community in North London
Co-living,Student and Hotel

Client: Private
Project Value: Undisclosed
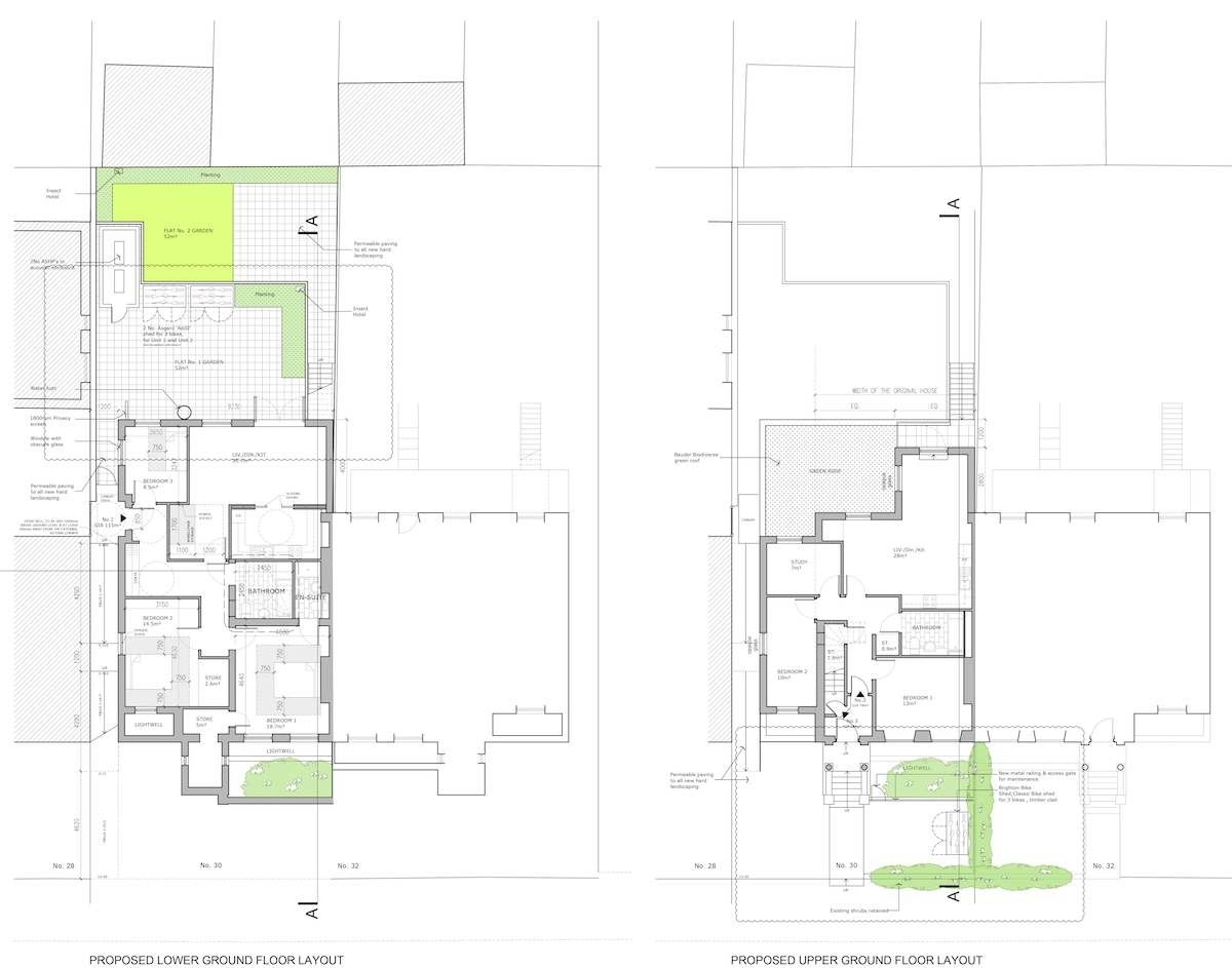
BB Partnership has obtained planning approval from the London Borough of Islington for the conversion and extension of the ground floor and lower ground floor of a semi-detached property on Tollington Road, N7. The project will provide two new dwellings: a 3-bedroom flat and a 2-bedroom flat.
In response to Islington’s Sustainability Design Policy, the proposed design focuses on improving the building’s fabric, with the inclusion of three new Air Source Heat Pumps (ASHPs) to serve all three flats within the development.
BB Partnership collaborated with the following consultant team to secure planning approval, including Firstplan (Planning Consultant), Schofield Surveyors (Sunlight Daylight Consultant), ACA Acoustics (Acoustic Report), NRG Consulting (Sustainability Consultant), and Fire Safety London (Fire Engineer).
317 Cricklewood Broadway: A New Student Living Community in North London
Co-living,Student and Hotel
Fulham Town Hall: Preserving Heritage Through Adaptive Reuse
Co-living,Student and Hotel
Island Site, Woolwich
Co-living,Student and Hotel
Cameo N7: Transforming Mill Hill with Landscape-Led Living
Multi-Unit Residential
137 Beehive Lane Development, Gants Hill, London
Multi-Unit Residential
Becontree Avenue: Thoughtful Backland Regeneration in Dagenham
