317 Cricklewood Broadway: A New Student Living Community in North London
Co-living,Student and Hotel

Client: Developer
Project value: Undisclosed
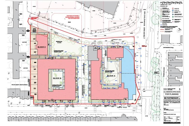
This high-quality residential-led development delivers 238 new homes alongside 736 sqm of flexible commercial space, reactivating a fragmented retail site and reinforcing Cricklewood Broadway as a key high street destination.
Previously, the site housed a single-storey retail unit with a large open car park, contributing little to the townscape. The redevelopment reintroduces a structured urban grain, with three new buildings that step in height from 2 to 9 storeys, responding sensitively to the surrounding context.
The architectural language takes cues from Cricklewood’s existing built fabric, featuring:
Internally, the design prioritises dual-aspect apartments where possible, ensuring high-quality daylighting, natural ventilation, and adaptable living spaces.
A central communal courtyard creates an inviting shared space for residents, improving both private and public realm. Additional enhancements include:
Developed under a Planning Performance Agreement (PPA) with Brent Council, the scheme was shaped by feedback from the GLA, TfL, and local stakeholders, ensuring alignment with strategic planning objectives.

BA [Hons], Dip Arc, RIBA
Director

BA [Hons], Dip Arc, RIBA
Director

BA [Hons], Dip Arc, RIBA
Director
317 Cricklewood Broadway: A New Student Living Community in North London
Co-living,Student and Hotel
Fulham Town Hall: Preserving Heritage Through Adaptive Reuse
Co-living,Student and Hotel
Island Site, Woolwich
Co-living,Student and Hotel
Cameo N7: Transforming Mill Hill with Landscape-Led Living
Multi-Unit Residential
137 Beehive Lane Development, Gants Hill, London
Multi-Unit Residential
82-84 Mitcham Lane: A Strategic Mixed-Use Redevelopment
Multi-Unit Residential
