Sotheby Road

Sotheby Road

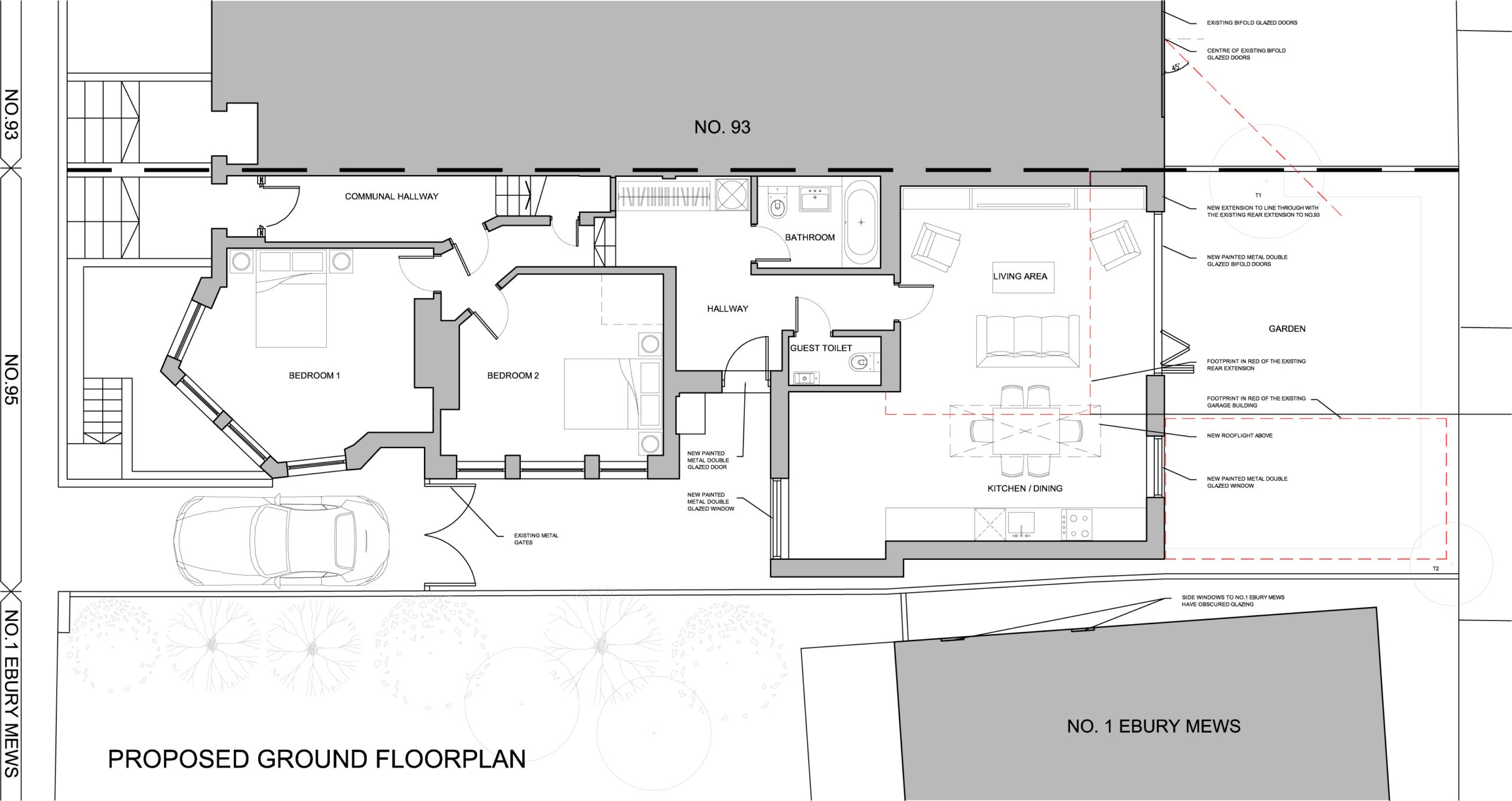
BB Partnership have obtained planning approval from Islington Council for the ground floor side and rear extension in Sotheby Road which is located in the Sotheby Road Conservation Area.

Related News, Projects and Articles

Exciting Opportunity for a Project Architect at BB Partnership

Successful planning appeal against a previous refusal in Chingford

Hendon way

Cranbrook Road