Cranbrook Road

Cranbrook Road

Cranbrook Road

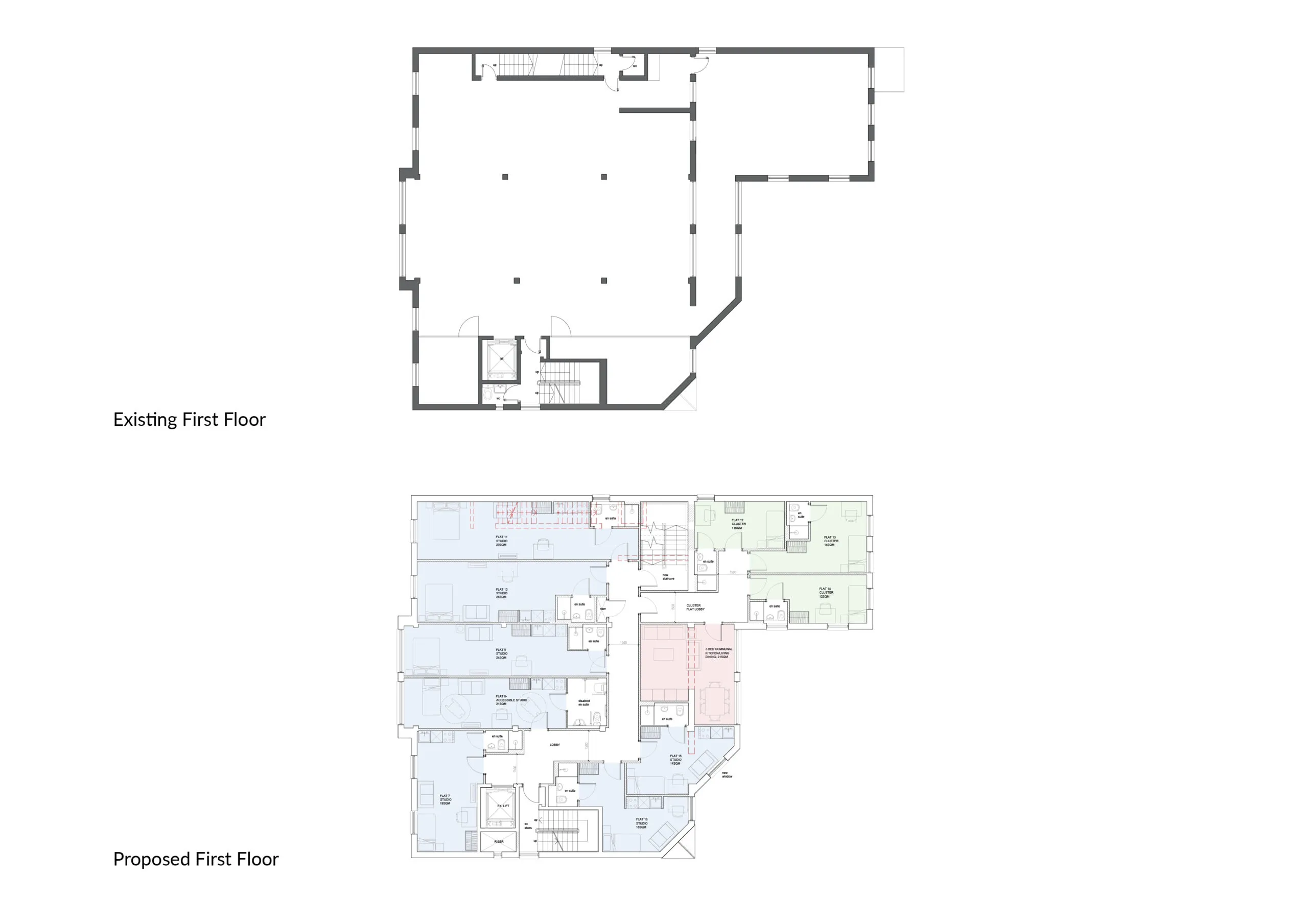
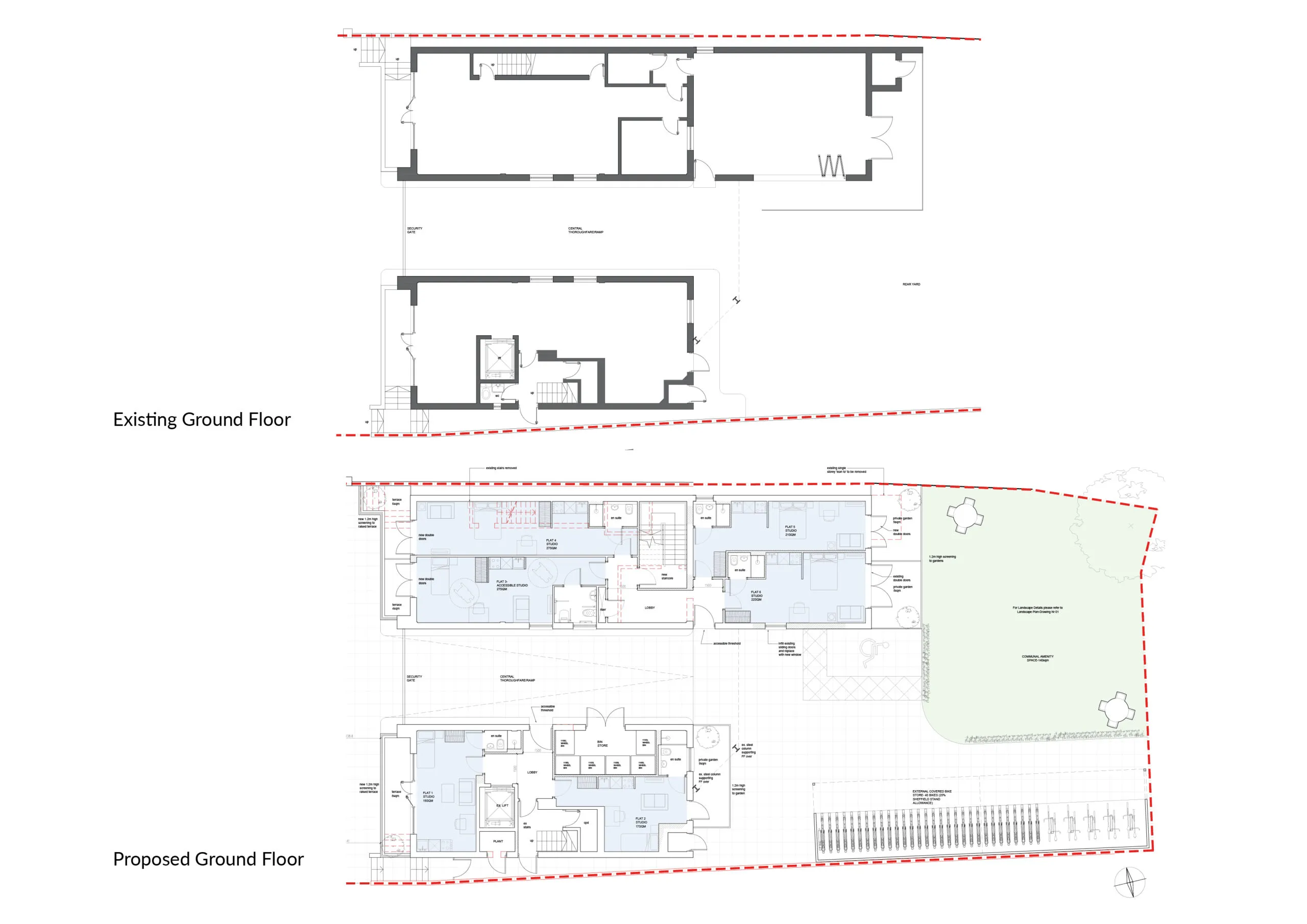
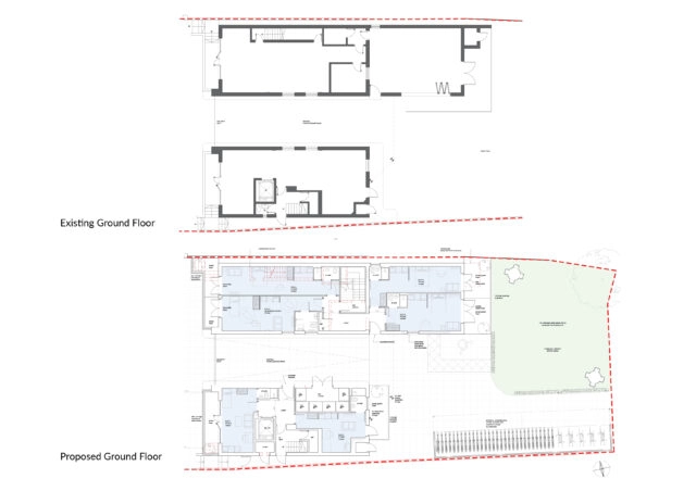
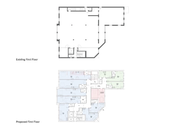
BB Partnership has obtained permission for conversion of an existing building to 35 student accommodation units ( of which 5 accessible units) and associated services in Ilford, Redbridge.

The layout of the floor plans has been designed, with minimal intervention to the existing fabric,  to provide the larger studio units with excellent views out over the adjacent Valentines Park to the East and a smaller number of cluster units with a private lobby and access to the shared kitchen/living/dining space at the rear.

The communal ground have been redesigned to provide pleasant landscaped area and some of the units are provided with private amenity space.

Related News, Projects and Articles

Exciting Opportunity for a Project Architect at BB Partnership

Successful planning appeal against a previous refusal in Chingford

Hendon way

Cranbrook Road