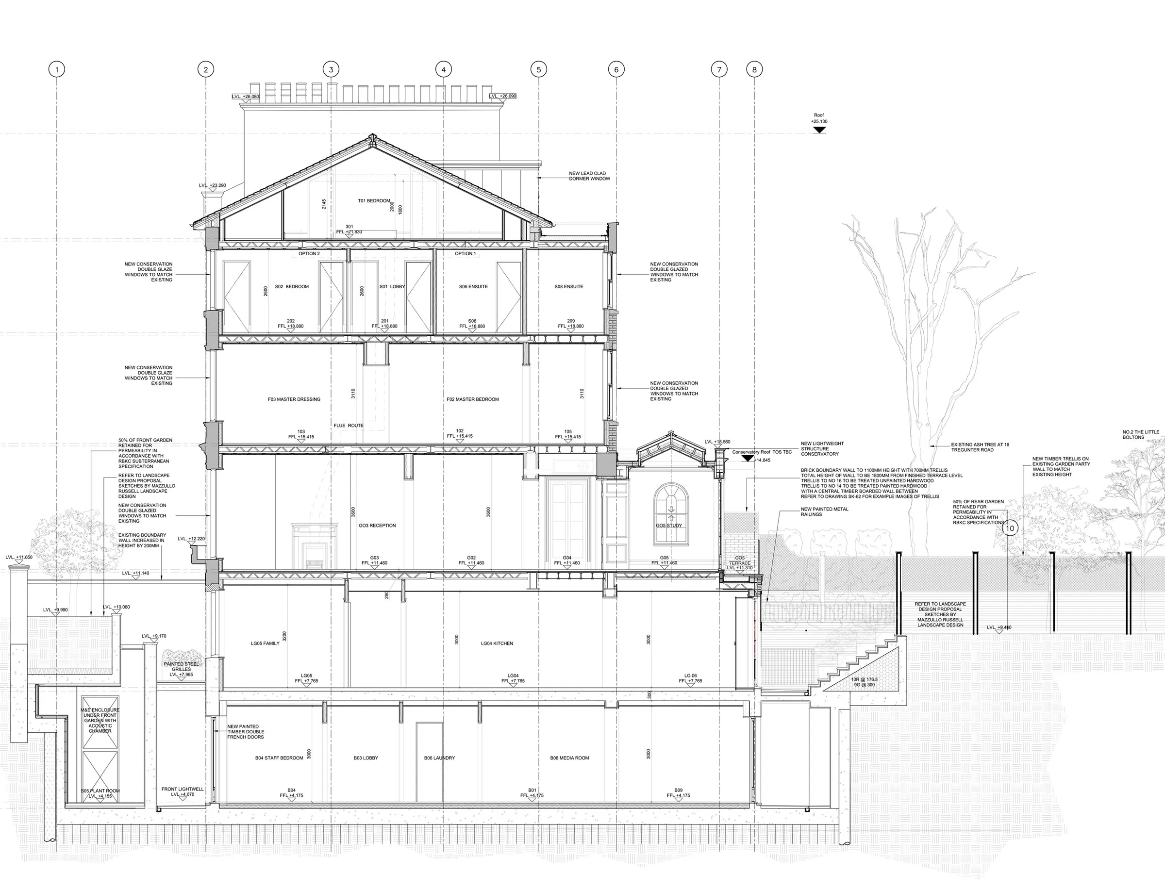
Detailed design

This stage will involve the preparation of technical and construction drawings, specifications and schedules and co-ordinating the input of the other consultants to form a package that will be used to construct the project on site.

This stage will include preparing and applying for Building Regulations approval, discharging any pre-commencement planning conditions and commencing the Party Wall process along with applying for any other third-party approvals such as Grosvenor Estate or Crown Estate consent.

This stage will also involve reviewing the options to construct the project in detail as there are a number of different ways in which this can be done that will influence the scope of service required from the design team.

Architect services throughout the lifecycle of a construction project

The detailed design stage is an important part of the development cycle.

The architects at BB Partnership Limited are skilled at every aspect of the construction process. Our services include: