Successful planning appeal against a previous refusal in Chingford

Successful planning appeal against a previous refusal in Chingford

Successful planning appeal against a previous refusal in Chingford

BB Partnership have obtained planning approval to significantly extend a detached house in Chingford following a successful planning appeal against a previous refusal, this article looks at the planning and appeal processes relating to this project.

The detached Edwardian property house located in the Chingford Station Road Conservation Area.

The proposed scheme includes both rear and side extensions at ground and first floor level along with a remodelled roof that will provide accommodation at a new second floor level.

The residential floor area will be increased by 67%.

The scheme was designed to comply with all local planning guidance issued by the London Borough of Waltham Forest, however the local authority rejected the scheme. Following the rejection we reviewed the options with our client.

First and foremost it is important to recognise that the majority of planning appeals are dismissed, so any decision to appeal a scheme must be carefully considered, especially considering the time and expense that goes into an appeal.

It is also important to review the reasons for the original refusal, it may be possible to make a case regarding some of them, but unless all the reasons for rejection can be addressed then caution should be advised before proceeding.

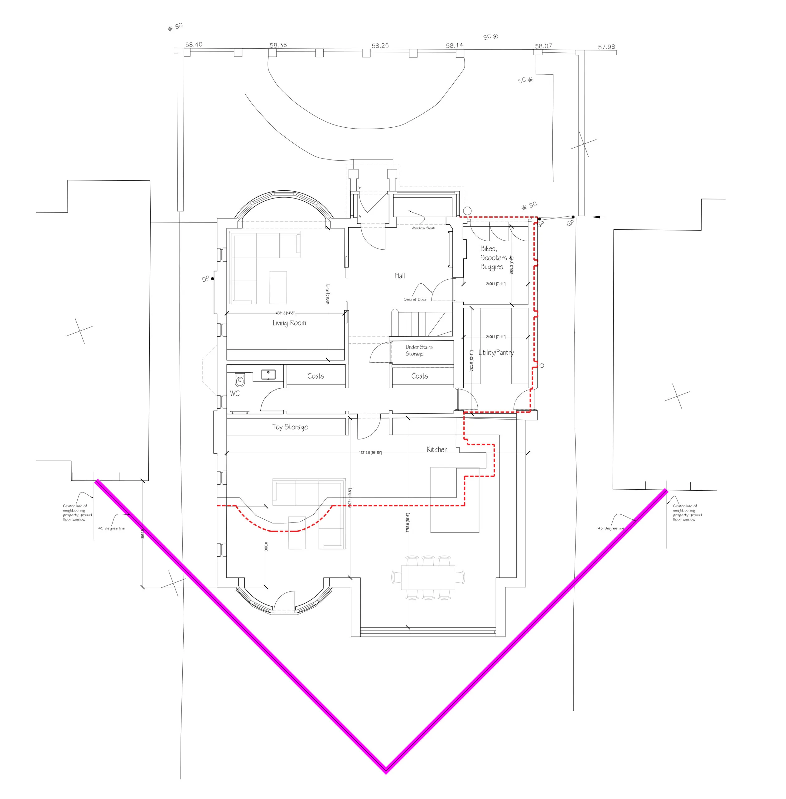
The fundamental reason for the original refusal was the size of the proposed increase which at 79% is significant, however the house is located on a large plot and has good separation from the neighbouring properties and whilst the gaps between properties form an important part of the character of any area, and of a conservation area, the gap between this property and that of the neighbouring property was much wider than the typical gaps between properties within the conservation area.

In terms of definable measures, the original application included drawings that demonstrated compliance with the 45-degree rule. The 45-degree rule is that if a line is drawn from the centre of the nearest neighbouring window in both plan and elevation then the proposed extensions should not cross that line.

The view taken with our client was that the rejected scheme was in accordance with the relevant policies and that an appeal should be submitted, but as the family were keen to start work on turning the dilapidated house into a home it was also important to have some fallback positions if the appeal was unsuccessful.

A Pre-Application process and subsequent Mini-Planning Performance Agreement had established that the local authority would support a smaller scheme and therefore a planning application was submitted for this smaller scheme as a fall-back position, which was subsequently approved.

Applications were also made to utilise the Permitted Development opportunities for the property, which demonstrated that a smaller but significant scale of development could be achieved using Permitted Development rights, although they would not result in such an aesthetically pleasing option as the scheme that was ultimately approved.

In granting the appeal the Planning Inspector deemed the following, shown in italics, with our commentary below:

  • Due to its design, scale and siting, it would not dominate the host property. The plans, which show the size of the existing dwelling, comparatively demonstrate that the extension would not be excessive in scale or mass. Although the extension would, for the most part, be of the same height as the existing dwelling, it would be subordinate, i.e. lesser than, the host dwelling in terms of its overall size.

This represents a key component of the design, by subtly setting back the extensions from the original dwelling and slightly reducing the hight of the roof we were able to demonstrate that the proposed extensions were subservient to the host building,

  • The property would retain a large rear garden following the development which would maintain a positive sense of spaciousness. The resulting dwelling would not be significantly or harmfully out of character with the surrounding properties, which I have identified are of various sizes, including many of which have been extended.

The unique aspects of a scheme need to be addressed when considering an appeal, in this case the plot and separation with other buildings were larger than other properties in the area meaning that the site could support a scheme larger whilst still maintaining the characteristic development grain of the area.

  • At the rear, the property has a notable curved bay window with hipped roof and a hanging bay window at the first-floor level. These architectural features would be reintroduced in the proposed development

The design of the proposed scheme replicated the detailing and style of the host building and whilst it is equally valid to apply a contemporary style to an extension, the key to producing a scheme that preserves and enhances a conservation area is that the detailing has to be carefully considered.

  • No. 41 has a large rear dormer window and I also observed that there are rear outriggers further up the street. The proposed side extension would reduce the visual separation with no. 37, however such a feature is not particularly characteristic of the area and a reasonable degree of separation, similar to that with no. 41, would remain. There would be no harm caused in this regard.

The inspector acknowledges the specific opportunities that the site offers and agrees that a larger than normal extension can be allowed.

  • The proposed development would comply with guidance contained in the Residential Extensions and Alterations and the Urban Design Supplementary Planning Documents (both 2010). These outline how residential developments should be well designed having regard to, amongst other things, the appearance or character of the existing house, and the appearance or character of neighbouring properties and the street as a whole.

It is important that planning applications address relevant policies to give them the best chance of being approved without the need for an appeal. It is also important to understand that a planning inspector assesses an appeal against the same policies that the local authority assess the application against

  • It would comply with Policies CS2 and CS15 of the Waltham Forest Core Strategy (2012), Policies DM4 and DM29 of the Waltham Forest Local Plan Development Management Policies (2013). Collectively, these policies require that developments, including residential extensions, are of a high quality of design, relate to the host building, respect the street scene and character of the area, and retain and restore traditional features and materials.

Essentially the final sentence describes the approach that should adopted when designing any scheme.

CONclusions:

  1. Pre-Application advice is useful and can streamline the planning process as can Planning Performance Agreements.
  2. It is preferable when appealing a scheme to be able to demonstrate that attempts were made to engage the council in obtaining a successful outcome.
  3. The Pre-Application process also acts as a mechanism to identify common ground with the local authority, so that the majority of issues can be dealt with ahead of making a full submission, so that if the scheme does subsequently go to appeal then the number of issues for the inspector to consider are smaller.
  4. Consider using a Planning Consultant throughout the planning process, not only to support the Planning Application but also to ensure that the scheme is suitably considered
  5. Whilst the appeal process is costly and time consuming, in some cases it is worth taking a scheme to appeal to get a better result than the scheme the planners would support as determined by a Pre-Application.
  6. A planning application must address the relevant policies. A planning inspectors role is to determine if the Local Planning Authority have correctly determined the application in regard to the relevant policies, not to determine if the policies themselves are right or wrong.
  7. It is better to be appealing on a small number of issues (ideally one) an inspector may agree on some of them but not all and will therefore dismiss the appeal.
  8. Have a fall-back position if the appeal fails, this could be the scheme that the planners have supported via a pre-app or one that utilises Permitted Development rights.
  9. Even an unsuccessful appeal is not the end of the line. The inspectors decision will detail the reasons that the appeal has been dismissed which may still help to define a route to achieving approval of a subsequent scheme that is still more preferable than one that the planners have indicated would be supported following a Pre-App.

BB Partnership would love to hear from you if you have a project where our experience could help you to obtain the best outcomes.

Related News, Projects and Articles

Exciting Opportunity for a Project Architect at BB Partnership

Successful planning appeal against a previous refusal in Chingford

Hendon way

Cranbrook Road

Successful planning appeal against a previous refusal in Chingford