
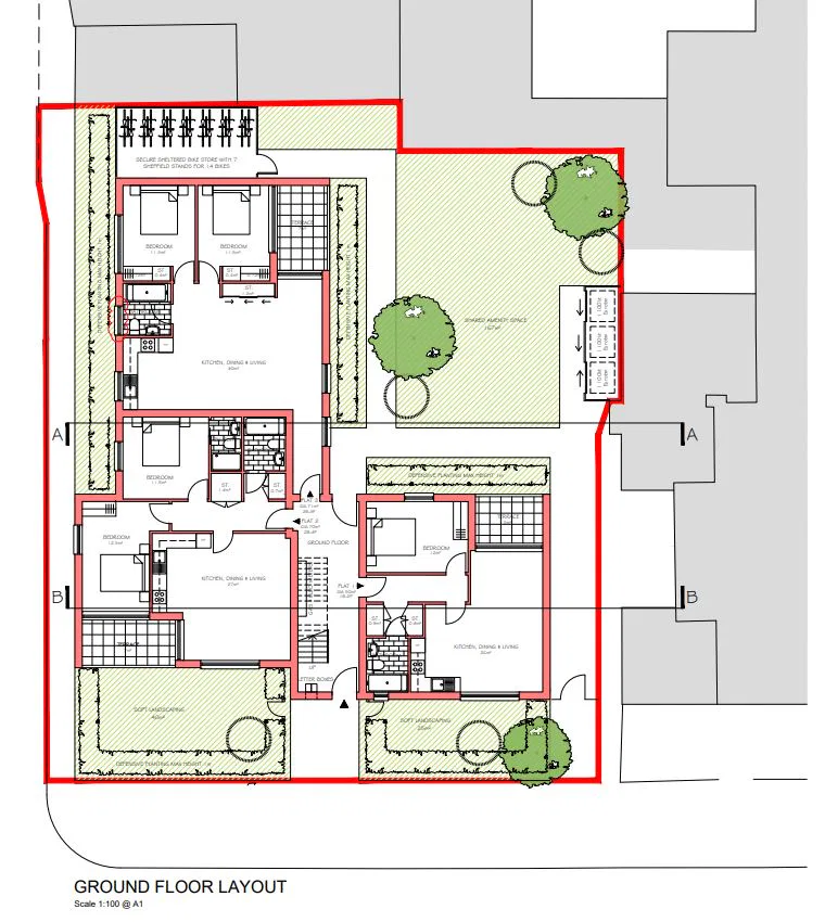
Planning consent has been obtained from London Borough of Barking & Dagenham for a new residential development comprising of 8 one-bedroom and two-bedroom flats with associated landscaping. The design is a contemporary interpretation of the original character of the Becontree Estate. It has carefully taken cues from the unique characteristics of the surrounding area by incorporating green background, varying pitched roofs, dormer windows, robust brickwork detailing and arched windows.