Sunrise, Molehill Green

Sunrise, Molehill Green

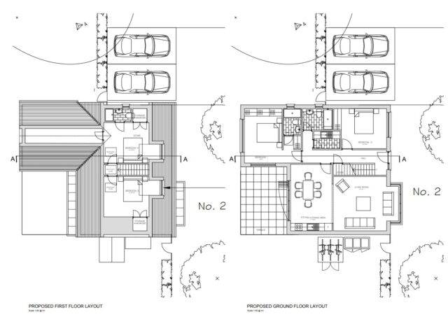
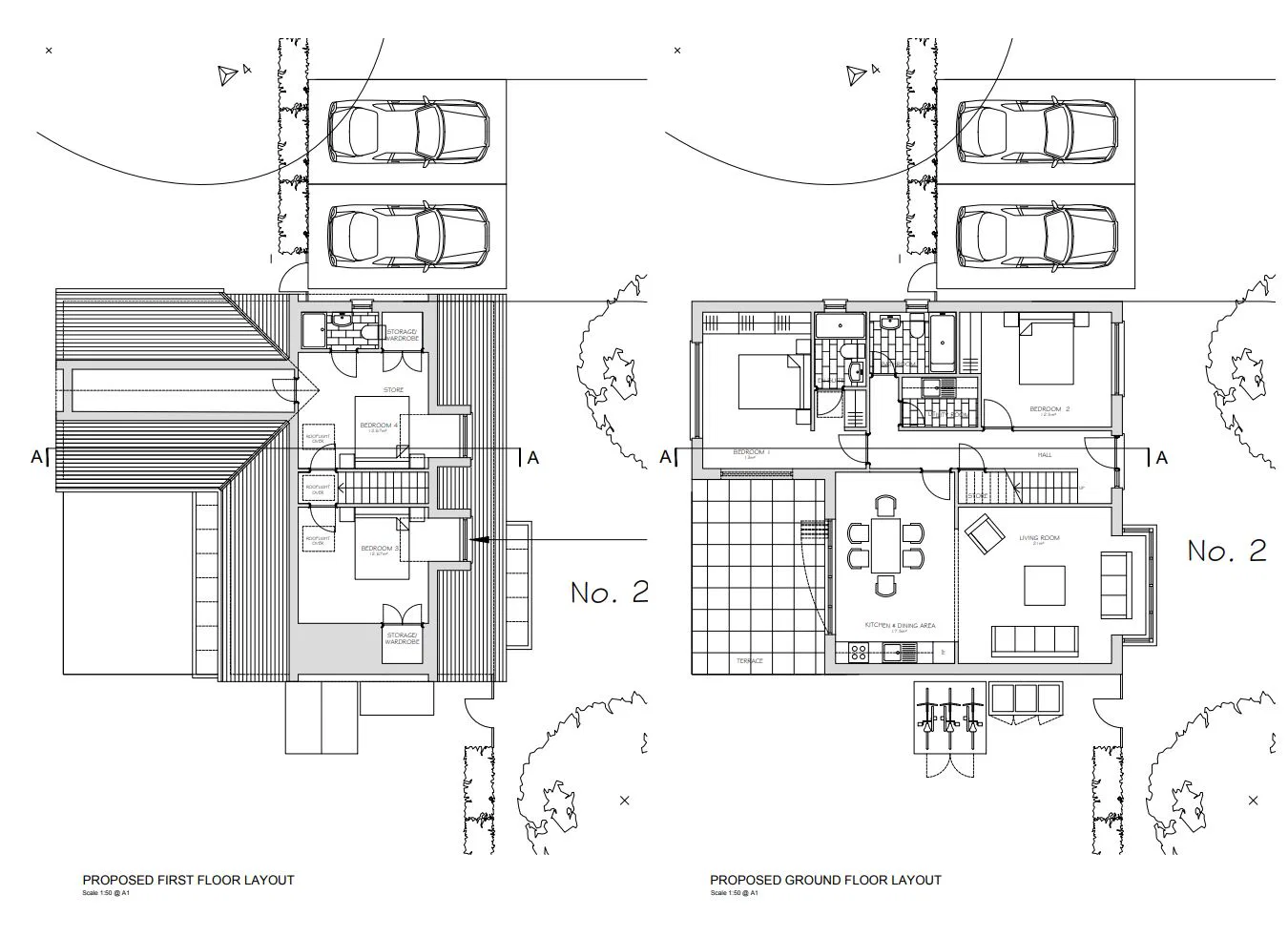
Planning consent has been obtained from Uttlesford District Council for retention of the existing property and construction of two new four-bedroom family houses with associated parking and landscaping.

Related News, Projects and Articles

Exciting Opportunity for a Project Architect at BB Partnership

Successful planning appeal against a previous refusal in Chingford

Hendon way

Cranbrook Road