82-84 Mitcham Lane

82-84 Mitcham Lane

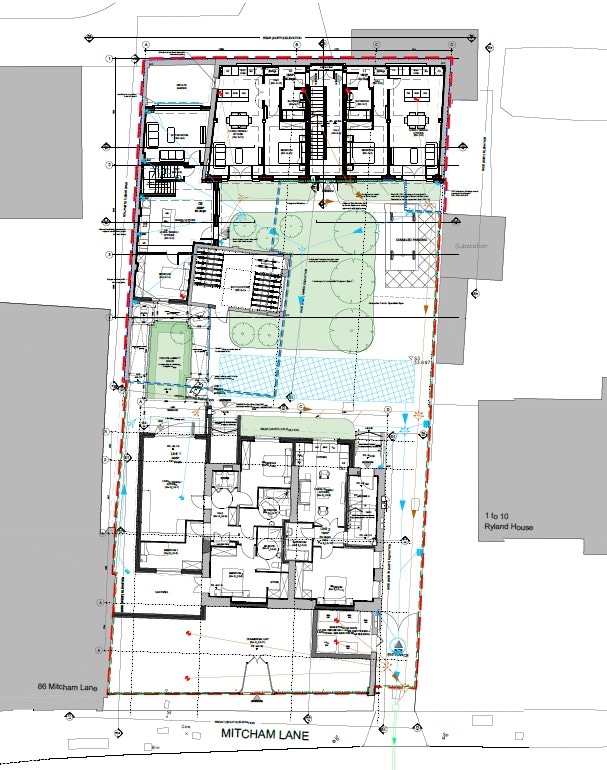
Planning has been submitted to make amendments to the scheme at 82-84 Mitcham Lane which will provide 15 x new residential units through the conversion and extension of 2 existing buildings in Streatham, Wandsworth.

Related News, Projects and Articles

Exciting Opportunity for a Project Architect at BB Partnership

Successful planning appeal against a previous refusal in Chingford

Hendon way

Cranbrook Road