
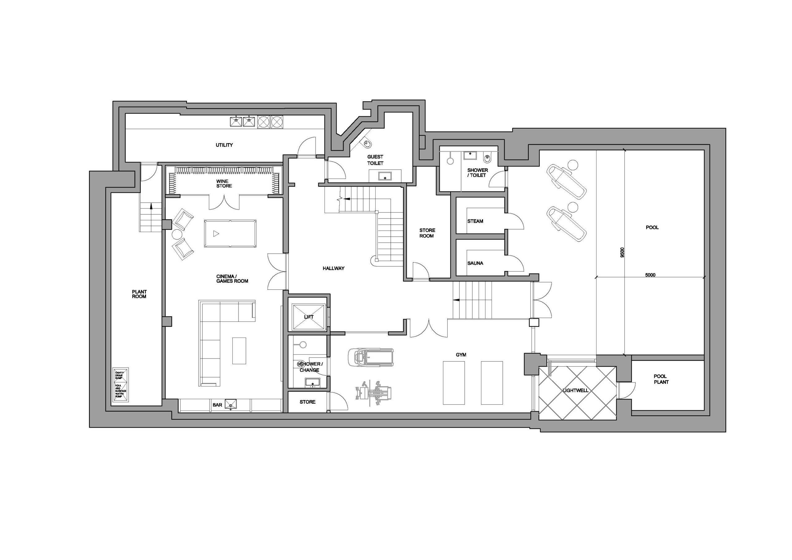
BB Partnership have obtained planning consent from the Borough of Camden for a new single storey basement under the footprint of the property and part of the front and rear garden areas which provides a total floor area for the house of 10,400ft2.
As part of the development of the project it was necessary to engage with a number of specialist consultants to meet the requirements set out by Camden’s Basement policy including – Arboriculturalist and Structural Engineer.