
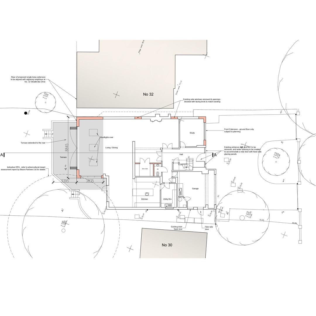
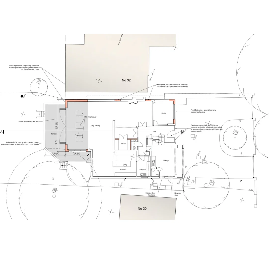
BB Partnership have obtained planning approval from Epping Forest DC for proposed single-storey rear & front extensions, modification of the main entrance door, minor changes to the side elevations & internal alterations at Stradbroke Drive, Chigwell IG7 5QY.
As part of the development of the project it was necessary to engage with an Arboriculturalist consultant to meet the requirements set out by Epping Forest DC policy and address mitigation required as a result of the implications assessment.