Refurbishment – 40 South Audley Street, Mayfair London.

Refurbishment – 40 South Audley Street, Mayfair London.

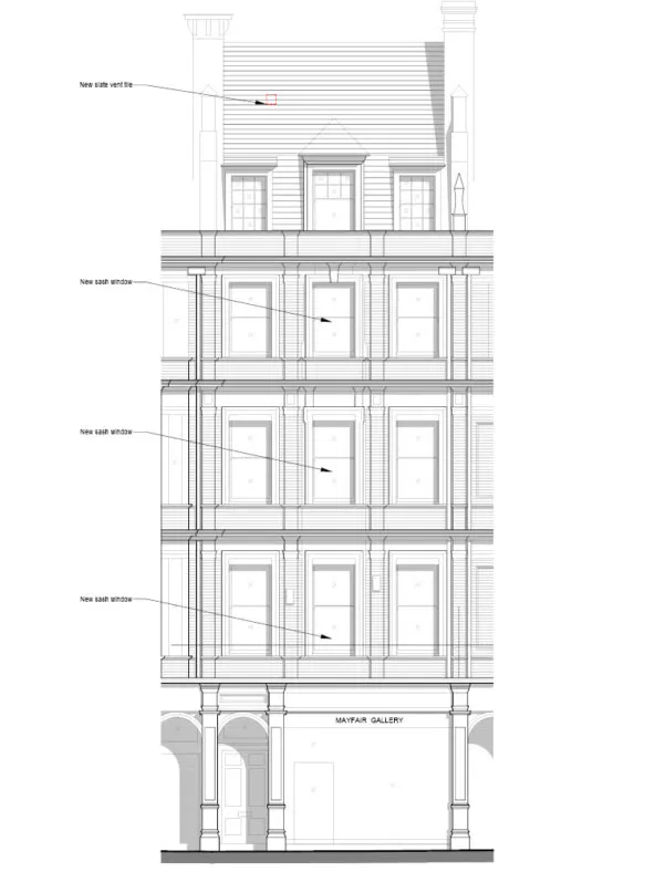
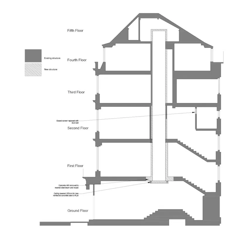
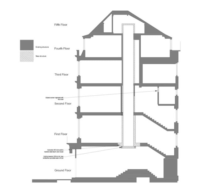
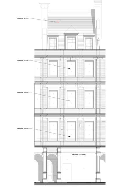
Works are about to start of the refurbishment of the Grade II listed office building located within the Grosvenor Mayfair Estate. Part of the project will include the installation of a lift shaft into the existing building along with the complete replacement of the existing services.

Related News, Projects and Articles

Exciting Opportunity for a Project Architect at BB Partnership

Successful planning appeal against a previous refusal in Chingford

Hendon way

Cranbrook Road