Gillespie Road , Highbury

Gillespie Road , Highbury

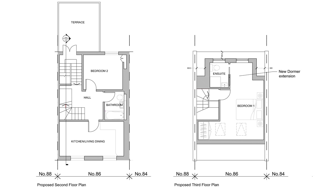
BB Partnership have obtained planning approval from Islington Council for a dormer extension to a property in Gillespie Road , Highbury.

Related News, Projects and Articles

Exciting Opportunity for a Project Architect at BB Partnership

Successful planning appeal against a previous refusal in Chingford

Hendon way

Cranbrook Road