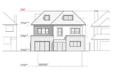
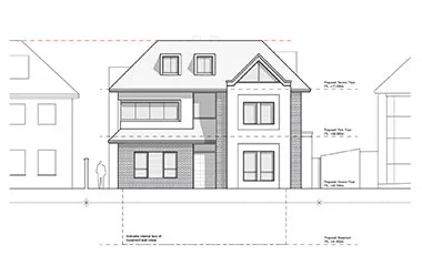
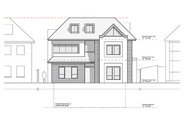
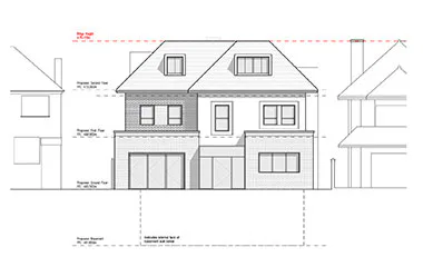
Cranbourne Gardens, NW11

Cranbourne Gardens, NW11

BB Partnership have recently submitted a planning application to the London Borough of Barnet for a 7,000 square foot, nine bedroom, modern style new-build family house in north London including a new basement. A decision is due in February 2016.

Related News, Projects and Articles

Exciting Opportunity for a Project Architect at BB Partnership

Successful planning appeal against a previous refusal in Chingford

Hendon way

Cranbrook Road