Beacontree Avenue, Barking & Dagenham

Beacontree Avenue, Barking & Dagenham

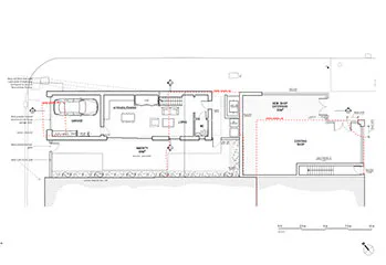
Full Planning permission has just been granted for a new two bed house and extension to a ground floor shop in Barking & Dagenham.

Related News, Projects and Articles

Exciting Opportunity for a Project Architect at BB Partnership

Successful planning appeal against a previous refusal in Chingford

Hendon way

Cranbrook Road