Approval of extension to listed building in Westminster

Approval of extension to listed building in Westminster

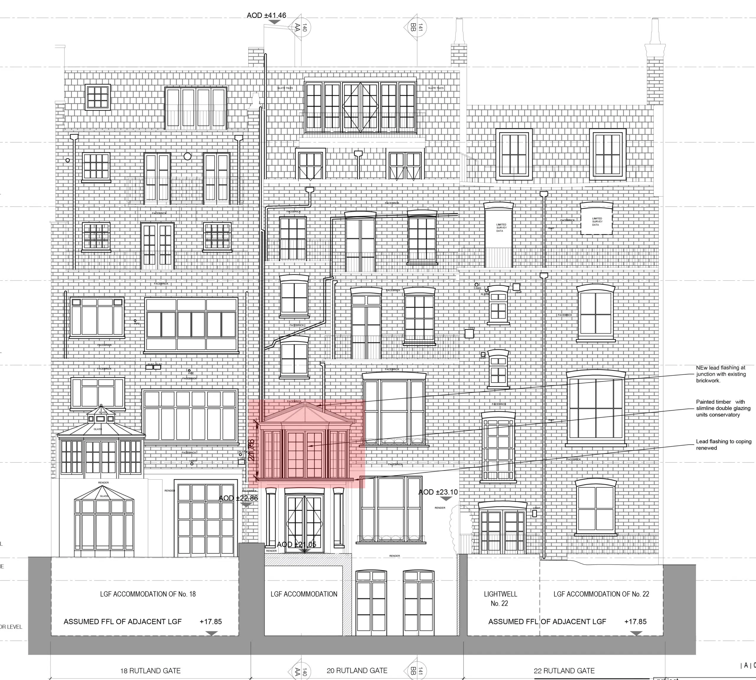
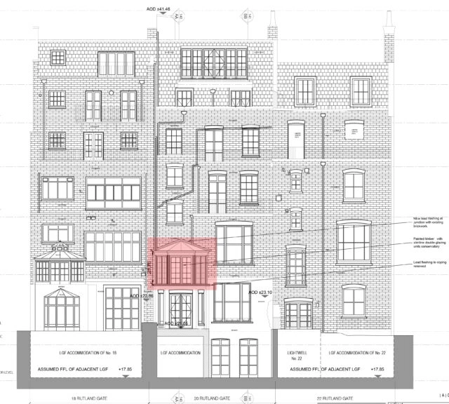
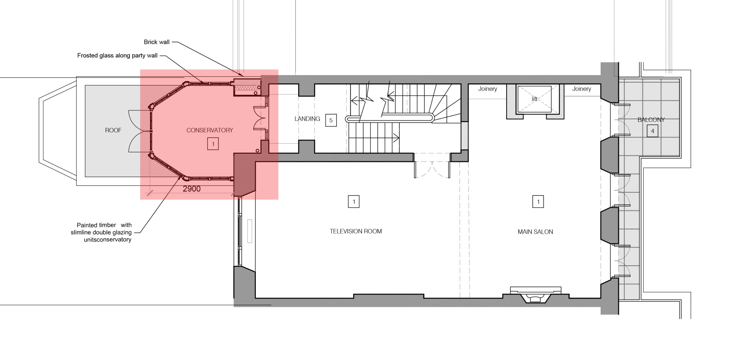
Planning and Listed Building consent has been obtained for an extension, A Victorian style conservatory at first floor level, to a Grade II listed Building in the Westminster.

Related News, Projects and Articles

Exciting Opportunity for a Project Architect at BB Partnership

Successful planning appeal against a previous refusal in Chingford

Hendon way

Cranbrook Road