
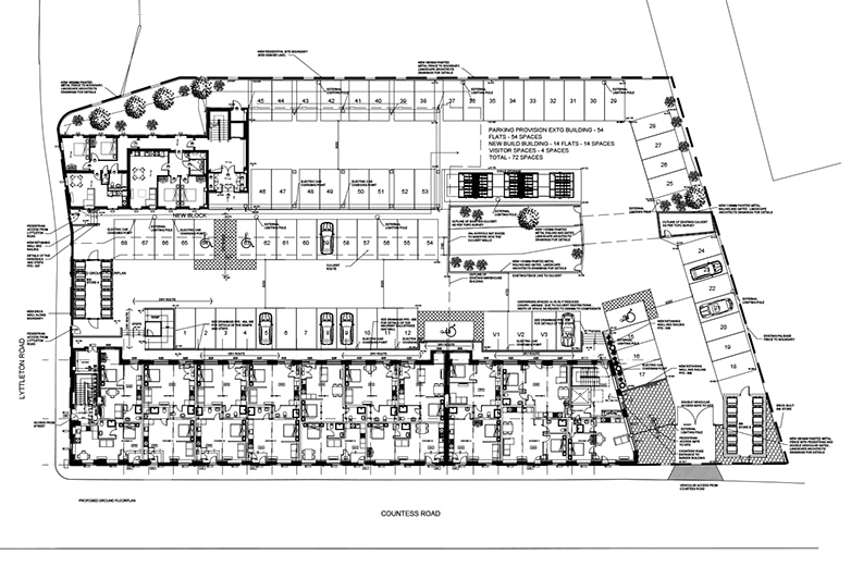
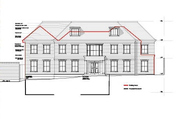
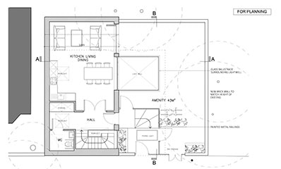
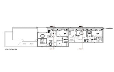
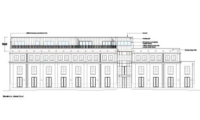
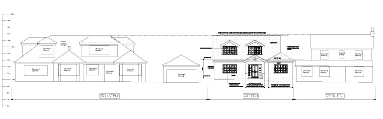
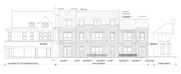
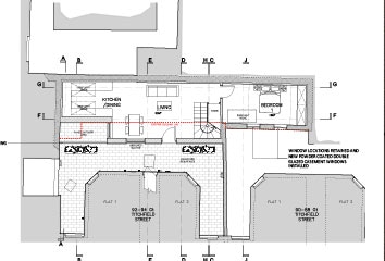
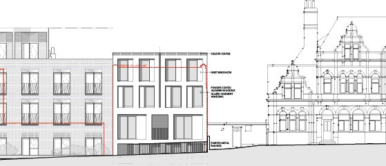
BB Partnership have been appointed to prepare a scheme design and submit a planning application for a new 200,000 sq.ft mixed-use development on a large site in London NW2. The development will comprise commercial and retail space on the ground floor with student housing above




















































































































































































































































































