Gainford road, Walthamstow

Gainford road, Walthamstow

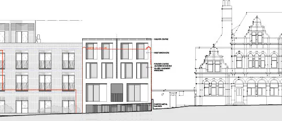
A new planning application has now been submitted for the construction of a new apartment scheme in Waltham Forest.

Related News, Projects and Articles

Exciting Opportunity for a Project Architect at BB Partnership

Successful planning appeal against a previous refusal in Chingford

Hendon way

11-15 Kings Terrace