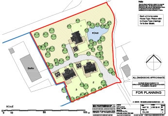
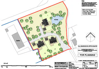
Ashlings farm, Essex

Ashlings farm, Essex

Planning permission has been granted by Epping Forest District Council for 3no new build, 4 bedroom detached family houses in the green belt, each with a total floor area of around 2,850 sq ft.

Related News, Projects and Articles

Exciting Opportunity for a Project Architect at BB Partnership

Successful planning appeal against a previous refusal in Chingford

Hendon way

Cranbrook Road