1 Disney Place, london, SE1

1 Disney Place, london, SE1

1 Disney Place, london, SE1

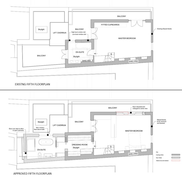
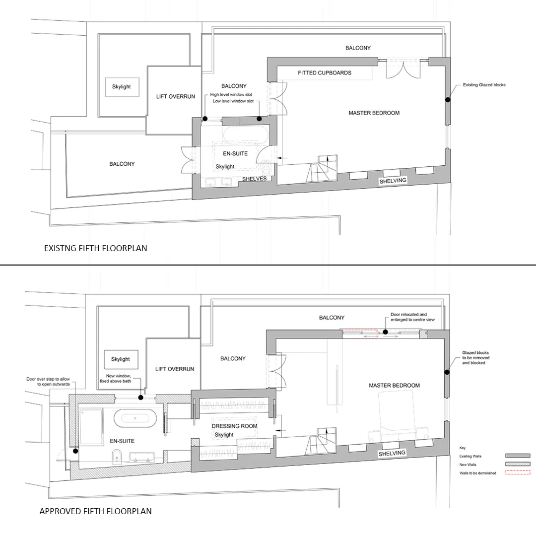
BB Partnership has obtained planning approval from Southwark Council to extend and refurbish an existing duplex apartment.
The proposal consists of the refurbishment of both floors of the apartment, including the enlargement of windows to maximise the fantastic views and an extension on the fifth floor to create a dressing room and a large en-suite.

Related News, Projects and Articles

Exciting Opportunity for a Project Architect at BB Partnership

Successful planning appeal against a previous refusal in Chingford

Hendon way

Cranbrook Road