Trevalyn House, Epping forest district Council

Trevalyn House, Epping forest district Council

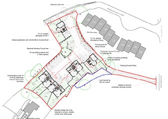
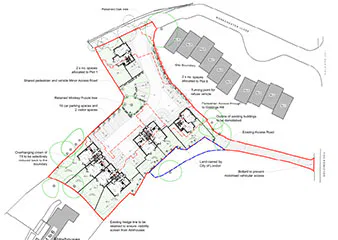
Planning Consent for demolition of 3 buildings to be replaced with 8 mixed sized dwellings in Loughton, Essex.

Related News, Projects and Articles

Exciting Opportunity for a Project Architect at BB Partnership

Successful planning appeal against a previous refusal in Chingford

Hendon way

11-15 Kings Terrace