Search for:
About Us
Process
Testimonials
The Team
Collaborations
Projects
Homes
Multi-Unit Residential
Co-living, Student & Hotel
Heritage & CONSERVATION
Executive Delivery
Principal Designer
Services
Developer
Homeowner
Heritage
Executive / Delivery
Freeholder License
Principal Designer
Resources
Articles
Fees
Contact
Menu
New build house in Leytonstone, Waltham Forest
All Articles
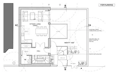
New build house in Leytonstone, Waltham Forest
1 June 2016
Planning has just been submitted for a new build underground house in Leytonstone.
Related News, Projects and Articles
Read More
6th September 2024
Exciting Opportunity for a Project Architect at BB Partnership
Read More
22nd November 2023
Successful planning appeal against a previous refusal in Chingford
Read More
3rd November 2023
Hendon way
Read More
5th October 2023
11-15 Kings Terrace
Previous Post
Next Post